Savills banner

2823m2 Warehouse TO LET in a secure modern park in Montague Gardens

Ref # SP-75718
R254,070
/ month
Property Details
4 Topaz Blvd, 3
2,823m²
2,823m²

This modern facility is ideal for warehousing and logistics and features 24/7 security with fantastic access to the major N7 highway.

Key Features:

Net rental: R90/m2

Ops Costs: +-R12/13m2

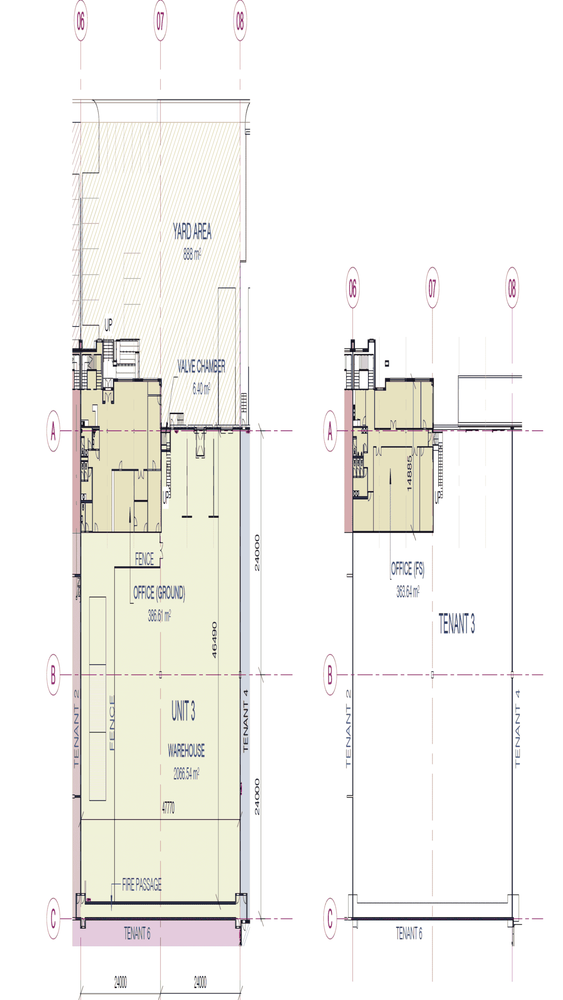
Warehouse area: 2073m2

Office area: 750m2

Yard area: 888m2

Height to eaves: 10m

Three Phase power

2 x Roller shutter access

1 Ramp and 1 Dock Leveller

Sprinklers

Ample parking

Contact me to arrange a viewing

Property Features
Property Type
Industrial
Floor Size
2,823m²
Land Size
2,823m²
Costs and Terms
Available From
01 Mar 2026
Lease Period
5 Years
Additional Information
Security
Security Available
Video Tour
Share this Property
Montague Gardens, Milnerton view
About Montague Gardens
Montague Gardens, positioned within Cape Town's northern industrial nexus, serves as a benchmark of commercial vitality and strategic planning.
Make an enquiry
Interested in this property? Please fill in your details below, and we will contact you as soon as possible.
By clicking on "submit" you agree to our privacy policy.
You may also be interested in these properties
R 243,810 / month
Video Tour
1
2,322m²
2,322m²
Industrial to rent in Atlantic Hills
2322 M2 P-grade Industrial Warehouse To Rent In Atlantic Hills With Yard
Optimize logistics from Atlantic Hills' prime N7-adjacent location — modern 2,322 m² facility with large paved yard, mezzanine, open-plan office, kitchenette and ablutions.
4 Malibongwe Blvd, Atlantic Hills Park, 1
South Africa
R 223,200 / month
Video Tour
4
14
2,480m²
Industrial to rent in Montague Gardens
2480m2 Warehouse With A 2400m2 Yard And 2000amp Three-phase Power Supply To Let In A Modern Secure Park In Montague Gardens.
Smooth logistics and staff convenience in Montague Gardens, adjacent to the N7 in a secure park; expansive 2,400m² yard, truck wash bay, four bathrooms, abundant parking.
4 Topaz Blvd, Montague Park, 1
South Africa
R 195,179 / month
Video Tour
3
2,280m²
2,280m²
Industrial to rent in Montague Gardens
2280m2 Warehouse With A 690m2 Yard Area To Let In Montague Gardens
Optimise industrial operations with seamless logistics and secure private yard in Montague Gardens, minutes from the N1/N7. Clear-span warehouse with natural light, offices, three bathrooms, 7m eaves.
4 Ludel Rd, Ludel Park, 2
South Africa