Savills banner

1500m2 warehouse with 1500m2 yard Cato Ridge

Ref # 2119067
R11,600,000
Property Details
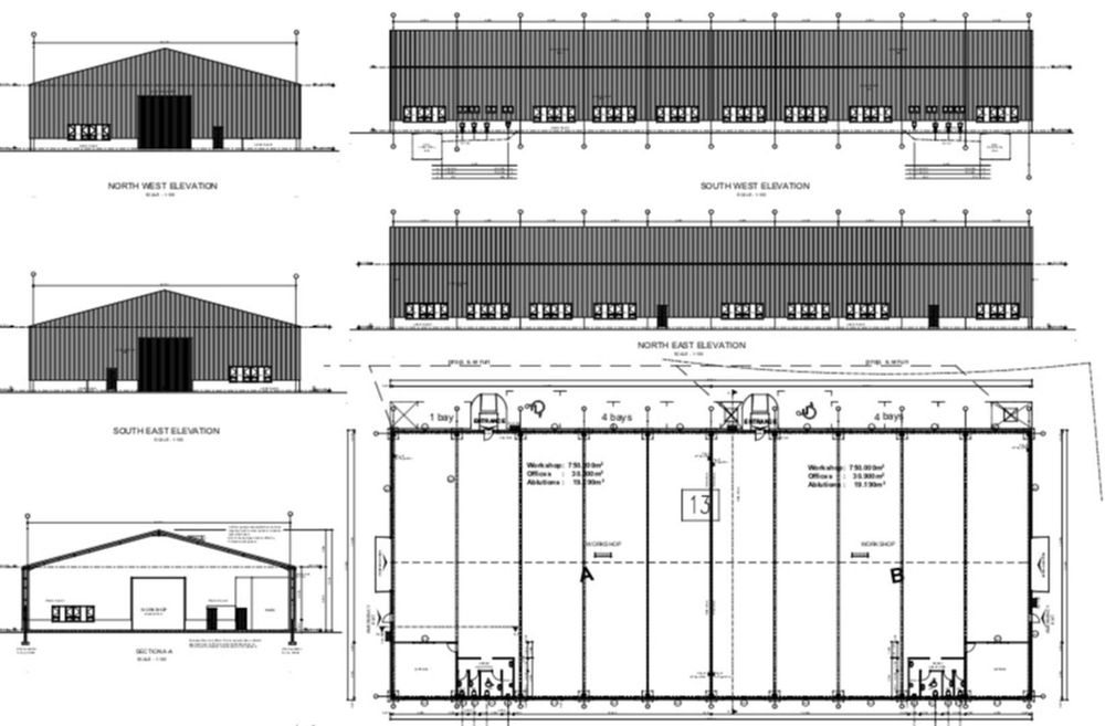
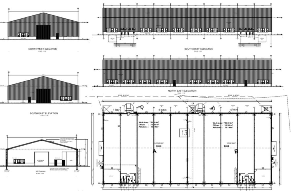
1,500m²
3,000m²

R95 000/month with 2 year lease in place and very probable extension thereof.

Accessibility / Location:

Easily accessible via the N3

10 Minutes from Cato Railway siding

Public transport within walking distance

Property Features:

3 Phase power, 300 Amp

Cross docking

1500m2 Yard

24hr Security

6M eaves height

Natural light

No Columns

2 x 4m Roller shutters (Receiving and dispatch)

Mezzanine

Reception area

2 Offices

Male and Female staff ablutions with showers

Contact Stefan Luth for more information, additional options throughout SA or to schedule a viewing.

Prime Industrial Property for Lease – R95,000/Month

---

Location & Accessibility:

This exceptional industrial property is strategically located for seamless accessibility. Situated just off the N3, it offers convenient connections to major transport routes. The Cato Railway Siding is a mere 10-minute drive away, ensuring efficient logistics. Additionally, public transport options are within walking distance, making commuting easy for your staff.

---

Property Features:

Designed with functionality in mind, this property is equipped with 3-phase power and a substantial 300 Amp capacity, ideal for various industrial operations. The facility boasts cross-docking capabilities and a spacious 1500m2 yard, providing ample space for maneuvering and storage.

Security is a priority with 24-hour surveillance, ensuring the safety of your assets. The warehouse features a 6-meter eaves height, allowing for efficient stacking and storage. Natural light floods the space, creating a pleasant working environment.

The absence of columns maximizes the usable floor area, enhancing operational efficiency. The property is equipped with two 4-meter roller shutters designated for receiving and dispatching goods, streamlining your logistics process.

Additional amenities include a mezzanine level for extra storage or office space, a welcoming reception area, and two well-appointed offices. The facility also caters to staff needs with separate male and female ablutions, complete with showers.

---

Contact Information:

For more information or to explore additional options across South Africa, please contact Stefan Luth. Schedule a viewing today to experience the full potential of this prime industrial property.

---

*Don't miss out on this opportunity to secure a versatile and well-located industrial space with the potential for lease extension.*

Property Features
Property Type
Industrial
Floor Size
1,500m²
Land Size
3,000m²
Additional Information
Security
Security Available
Share this Property
Cato Ridge view
About Cato Ridge
Discover Cato Ridge: The Commercial Vanguard of KwaZulu-Natal's Interior
Make an enquiry
Interested in this property? Please fill in your details below, and we will contact you as soon as possible.
By clicking on "submit" you agree to our privacy policy.