Savills banner

Prime New Development Warehouse To Rent Airport Industria

Ref # 2381699
POA
Property Details
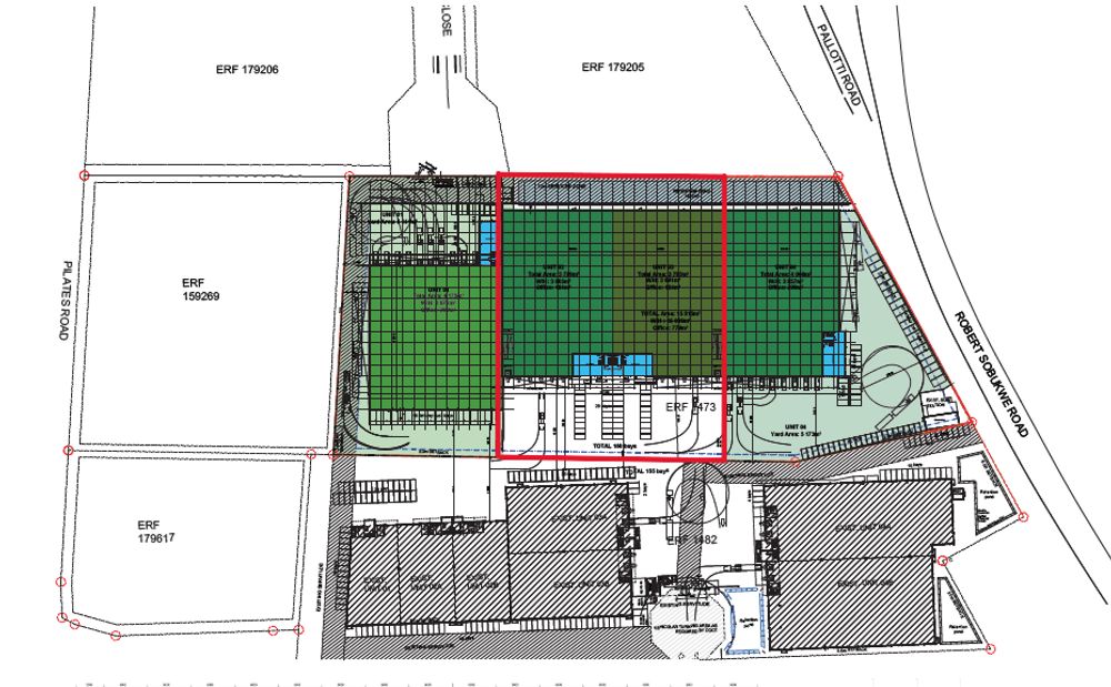
1 Skyhawk Close Off King Air Boulevard, Skyhawk Park, 2&3
7,574m²
9,574m²

Skyhawk Park is offering four brand-new warehouse units for rent at Airport Industria - Cape Town International Airport, with options for shared or exclusive yards. Premium-grade offices are designed according to the best industrial design practices. This sought-after location in the Airport City Improvement District offers seamless connections and efficient routes to local and international markets, making it ideal for light manufacturing, logistics, freight forwarding, and courier services.

Standout features:

- Wide roller shutter doors for efficient loading and unloading

- Fire sprinklers

- 13-meter eaves

- Approximately 2000 m2 yard space

- 7,574 m2 warehouse space

- 368 m2 office space

- 28 delivery truck bays

- 23 staff parking bays

- 5-meter canopy

Completion is estimated in May 2026, 12 months from now.

The four units can be rented individually or combined to suit your requirements.

For additional information and to secure your new warehouse space, contact Enzo.

Property Features
Property Type
Industrial
Floor Size
7,574m²
Land Size
9,574m²
Costs and Terms
Lease Period
60
Additional Information
Grade
AAA
Share this Property
Airport Industria, Cape Town view
About Airport Industria
Airport Industria, nestled directly beside Cape Town International Airport, stands as a paramount hub for industrial innovation and logistical excellence.
Make an enquiry
Interested in this property? Please fill in your details below, and we will contact you as soon as possible.
By clicking on "submit" you agree to our privacy policy.
You may also be interested in these properties
POA
Just Listed
10,000m²
71m²
Industrial to rent in Airport Industria
P Grade New Development To Let In Airport Industria
Operate with unmatched convenience minutes from Cape Town International — King Air Industria offers secure 24-hour gated access, fibre connectivity, and immediate air, sea and road freight links.
3 Pallotti Rd, King Air Industria
South Africa
POA
Just Listed
3,789m²
4,789m²
Industrial to rent in Airport Industria
New Warehouse Development To Rent In Airport Industria
Efficient distribution hub with seamless Cape Town International Airport access in Airport Industria, Airport City. Premium-grade offices, 13m eaves and wide roller shutter doors, flexible yard options.
1 Skyhawk Close Off King Air Boulevard, Skyhawk Park, 2
South Africa
POA
Just Listed
3,785m²
4,785m²
Industrial to rent in Airport Industria
New Logistics Warehouse Development In Airport Industria
Run efficient logistics operations from Airport Industria, steps from Cape Town International Airport, in premium-designed warehouses with 13m eaves, wide roller shutters and shared or exclusive yards.
1 Skyhawk Close Off King Air Boulevard, Skyhawk Park, 3
South Africa