Savills banner

New Logistics Warehouse Development In Airport Industria

Ref # 2381693
POA
Property Details
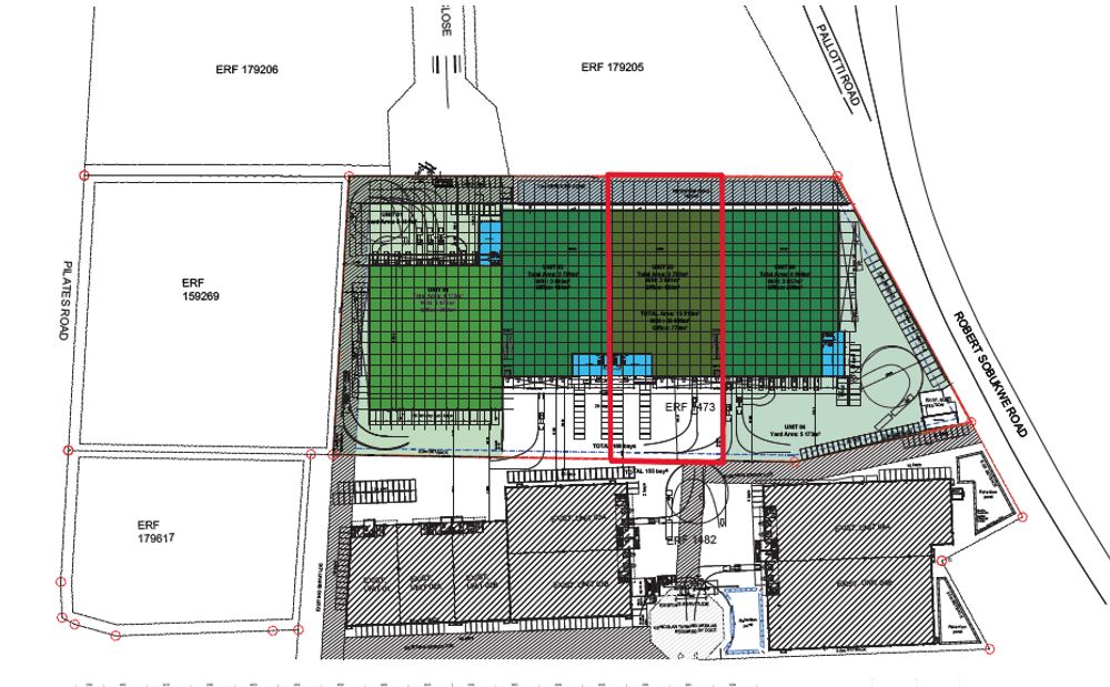
1 Skyhawk Close Off King Air Boulevard, Skyhawk Park, 3
3,785m²
4,785m²

Skyhawk Park is offering four brand-new warehouse units for rent at Airport Industria - Cape Town International Airport, with options for shared or exclusive yards. Premium-grade offices are designed according to the best industrial design practices. This sought-after location in the Airport City Improvement District offers seamless connections and efficient routes to local and international markets, making it ideal for light manufacturing, logistics, freight forwarding, and courier services.

Standout features:

- Wide roller shutter doors for efficient loading and unloading

- First fixed sprinklers

- 13-meter eaves

- 28 parking bays

- 3,601 m2 warehouse space

- 184 m2 office space

- 5-meter canopy

- 37-meter length yard

Estimated completion date is May 2026, 12 months.

The four units can be rented individually or combined to suit your requirements.

Property Features
Property Type
Industrial
Floor Size
3,785m²
Land Size
4,785m²
Costs and Terms
Lease Period
60
Additional Information
Grade
AAA
Share this Property
Airport Industria, Cape Town view
About Airport Industria
Airport Industria, nestled directly beside Cape Town International Airport, stands as a paramount hub for industrial innovation and logistical excellence.
Make an enquiry
Interested in this property? Please fill in your details below, and we will contact you as soon as possible.
By clicking on "submit" you agree to our privacy policy.
You may also be interested in these properties
POA
Just Listed
7,574m²
9,574m²
Industrial to rent in Airport Industria
Prime New Development Warehouse To Rent Airport Industria
Operate seamless, high-capacity logistics from Airport Industria at Cape Town International Airport, with premium-grade offices, shared or exclusive ~2000 m² yards and 28 dedicated delivery truck bays.
1 Skyhawk Close Off King Air Boulevard, Skyhawk Park, 2&3
South Africa
POA
Just Listed
Video Tour
2
690m²
690m²
Industrial to rent in Paarden Eiland
690m2 Showroom And Warehouse With Yard Area To Let In Paarden Eiland
High-visibility retail site on Marine Drive, Paarden Eiland, ideal for footfall-driven businesses; open-plan showroom with storage/warehouse, office, two bathrooms, generous front parking and prime signage.
1 Paarden Eiland Rd, Plumb Park, 2
South Africa
POA
Just Listed
4,175m²
9,316m²
Industrial to rent in Airport Industria
New Development To Let Airport Industria
Position your logistics hub in Airport Industria at Cape Town International Airport, with seamless global connections, premium offices, wide roller shutter doors and options for shared or exclusive yards.
1 Skyhawk Close Off King Air Boulevard, Skyhawk Park, 1
South Africa