Savills banner

A-Grade | Industrial Warehouse Facility | To Let & For Sale | 3 353 m2 | New Germany Industrial Park

Ref # SP-75877
R251,475
/ month
Property Details
14 Valley View Rd, New Germany Industrial Park, 1
3,353m²
267,762m²

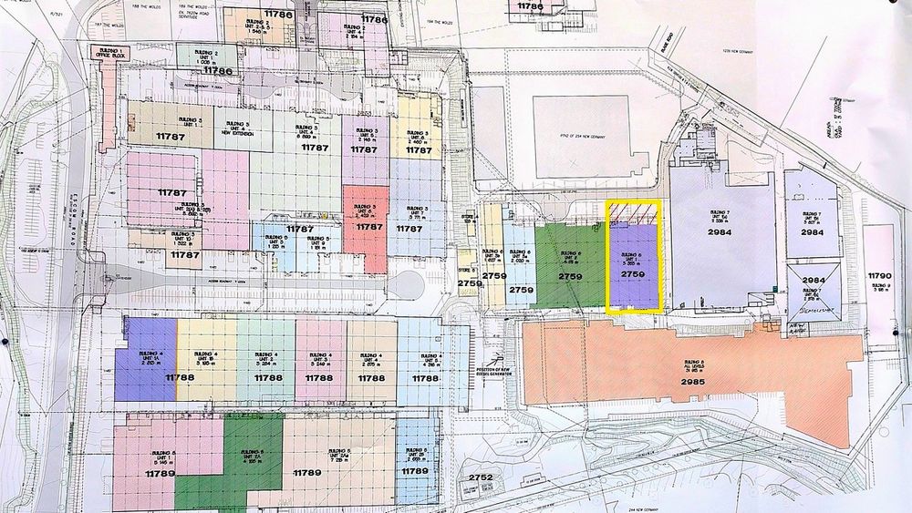
This well-positioned 3 353 m2 industrial facility is located within a secure, access-controlled industrial park in New Germany, just northwest of Durban. The property comprises 3 097 m2 of warehouse space and 256 m2 of offices, toilets and stores, delivering a balanced mix of operational and administrative areas. The warehouse is supported by a 904 m2 free yard area, allowing for truck circulation and loading flexibility. With immediate availability and rental set at R75 per m2, the property is offered both To Let and with a first option to purchase once sectionalised, presenting a strategic opportunity for both investors and owner-occupiers.

Designed for functional industrial use, the facility features four roller shutter doors to the front elevation, three additional side roller shutter doors, and a separate access point suitable for Hyster/forklift operations, ensuring efficient goods handling. The warehouse is fitted with a smoke detection system and an ordinary hazard sprinkler system, supported by 125 Amps 3-phase power. Internal improvements include administration offices, kitchen facilities, and male and female ablutions with showers. Situated within a 24-hour gated security park, and offering seamless connectivity to the M19 and N3 corridors with direct access to Durban Port, Pinetown and surrounding logistics nodes, the property is ideally suited to warehousing, distribution, light manufacturing, and regional logistics operators seeking secure, scalable premises.

Property Features
Property Type
Industrial
Bathrooms
2
Covered Parking
4
Open Parking
10
Floor Size
3,353m²
Land Size
267,762m²
Costs and Terms
Rates & Taxes
±R1
Levy
±R1
Available From
01 Mar 2026
Lease Period
60 months
Additional Information
Security
Security Available
Video Tour
Share this Property
New Germany, Pinetown view
About New Germany
New Germany, a thriving suburb located just inland of Durban, South Africa, presents a blend of residential charm and commercial potential available to let or for sale.
Make an enquiry
Interested in this property? Please fill in your details below, and we will contact you as soon as possible.
By clicking on "submit" you agree to our privacy policy.
You may also be interested in these properties
R 255,750 / month
Video Tour
2
12
3,410m²
267,762m²
Industrial to rent in New Germany
Durable 3,410m2 Industrial Warehouse/factory To Let In New Germany Industrial Park
Operate high-volume manufacturing and logistics from Pinetown’s secure industrial park, with exceptional Durban/port connectivity, expansive internal yards for super-link articulation, high roof heights, and two bathrooms.
14 Valley View Road, New Germany Industrial Park, E
South Africa
R 215,625 / month
Video Tour
2
10
2,875m²
267,762m²
Industrial to rent in New Germany
Premium 2,875 M2 Warehouse Facility To Let/for Sale In New Germany Industrial Park, Pinetown
Streamlined fulfillment hub in New Germany Industrial Park, offering secure access-controlled location and a 755 m² exclusive-use yard for efficient truck circulation and operations.
14 Valley View Road, New Germany Industrial Park, 4
South Africa
R 233,580 / month
Video Tour
Reduced
4
13
2,748m²
21,092m²
Industrial to rent in New Germany
Prime 2748m2 Combined Warehouse Space To Let In New Germany, Pinetown
Scale and seamless logistics for growing businesses in the heart of New Germany, moments from the N3/M19/M13. Features ±900m² hardened yard, eight roller doors, four bathrooms and 13 parking bays.
17 Chelsea Ave, Chelsea Industrial Park, 4 & 8
South Africa