Savills banner

±90,000m2 Sectional Title Industrial Investment In New Germany, Pinetown

Ref # SP-76097
POA
Property Details
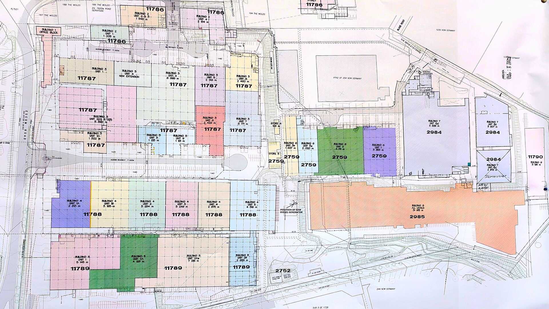
124 Escom Rd, New Germany Industrial Park
90,568m²
269,037m²

This large-scale industrial park offers approximately ±90,000m2 of sectional title GLA available for sale, providing a rare opportunity for both investors and owner-occupiers to secure space within a secure, infrastructure-rich logistics environment. Units are available in a variety of configurations, with options for vacant occupation from ±1,000m2 GLA, while investors can acquire sections with blue-chip tenants in place. Sales prices vary depending on unit size and tenant profile, with pricing typically ranging per square metre across the park and potential investment returns between 9% and 11%.

The park has been purpose-built for modern industrial logistics, offering three road frontages for excellent visibility and access, and full perimeter security with five 24-hour manned gatehouses. The estate supports super-link articulation with wide internal roadways and efficient traffic flow. Infrastructure is institutional-grade, including ASIB-compliant fire protection, significant water storage, reliable power supply supported by large municipal transformers, and independent metering for each unit, making this an attractive long-term investment within a well-established industrial node.

Costs and Terms
Rates & Taxes
±R1
Levy
±R1
Available From
13 Mar 2026
Additional Information
Security
Security Available
Share this Property
New Germany, Pinetown view
About New Germany
New Germany, a thriving suburb located just inland of Durban, South Africa, presents a blend of residential charm and commercial potential available to let or for sale.
Make an enquiry
Interested in this property? Please fill in your details below, and we will contact you as soon as possible.
By clicking on "submit" you agree to our privacy policy.