Savills banner

NEW Retail and Commercial Development

Ref # 2384027
R180
/ m² / month
Property Details
2,626m²
2,684m²

Accessibility / Location:

Easily accessible via the N3

Excellent exposure to N3

Located at 39 Moffat Drive, the new development is situated in the major business area of Ballito. Ballito is an affluent beachside town located in KwaZulu-Natal, South Africa. Ballito is about 40km north of Durban and 24km south of KwaDukuza.

The site is 1km drive from the N2 off ramp into Ballito. The Ballito Lifestyle centre and the Ballito Junction mall are in close proximity to the site, these are both major hubs of activity in the area. There are multiple car dealerships located next to and around the site.

The site is directly adjacent to the N2 highway, This provides a great opportunity for visibility of the new development. This makes the site especially suitable for businesses where enhanced presence along with good access to main transport routes and an eye-catching frontage are a must.

MULTI LEVEL

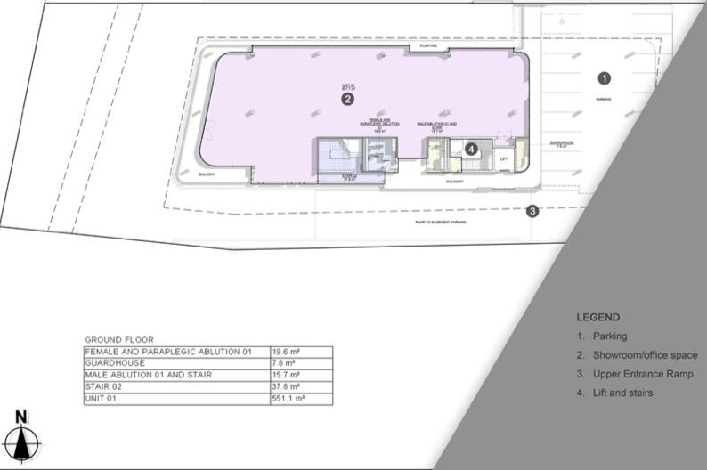
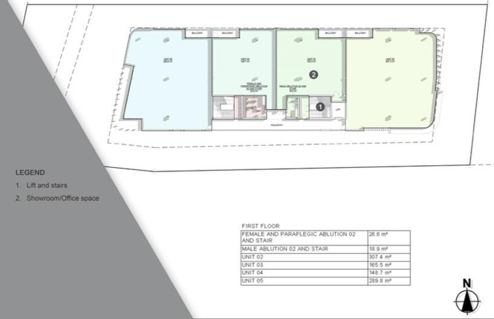
The multiple levels of the building allow it to be flexible and suitable to many types of retail and commercial activites. The open nature of the ground floor is suitable for a showroom. The first and second floors have been designed to accommodate several small offices or combined into one big open office.

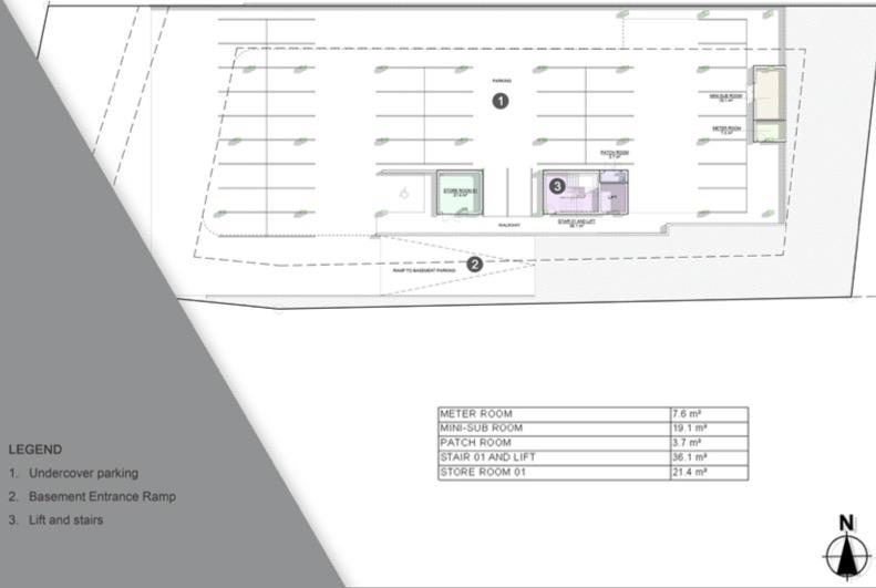
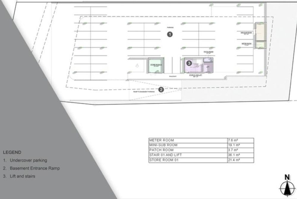
PARKING

Parking is provided on two levels, on the ground floor where it can engage directly with the street and at the basement level which provides a more secure and private environment.

SURROUNDING BUSINESSES

The Center is surrounded by a number of car show rooms and various retail and commercial buildings. This creates a method of cohesion between the proposed showroom / offices and the surrounding facilities. Thus, allowing ease of referral and movement from one space to another, if need be.

Contact Stefan Luth from Swindon Property for more information, additional options throughout SA or to schedule a viewing.

Property Features
Property Type
Mixed Use
Floor Size
2,626m²
Land Size
2,684m²
Costs and Terms
Available From
06 May 2026
Lease Period
3 to 5 years
Additional Information
Grade
AAA
Share this Property
Ballito view
About Ballito
Ballito, commonly known as the Dolphin Coast due to high volume of dolphins living along this stretch of the coast, is not only a fantastic holiday destination but is also becoming a hot spot for the industrial and commercial sector.
Make an enquiry
Interested in this property? Please fill in your details below, and we will contact you as soon as possible.
By clicking on "submit" you agree to our privacy policy.